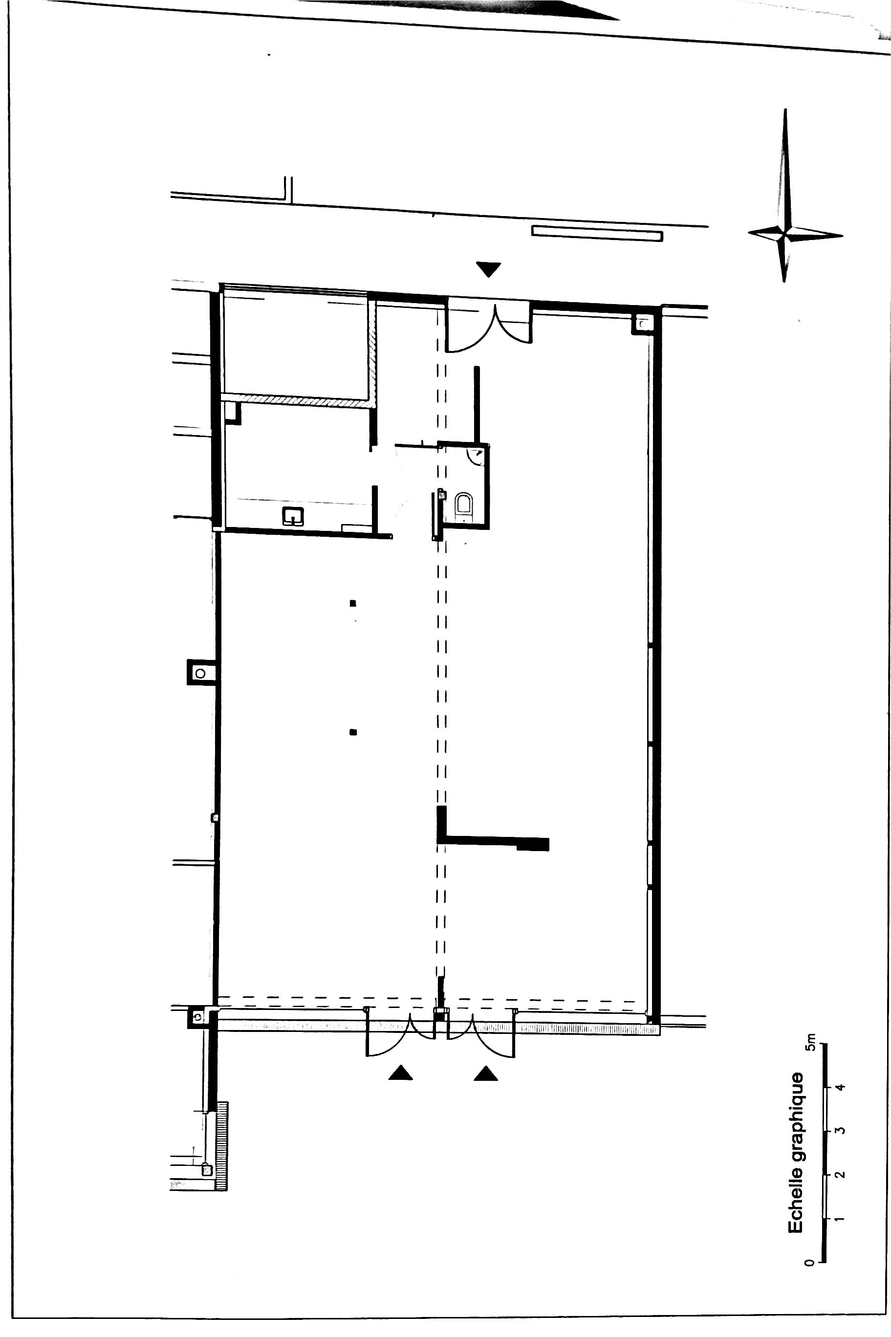
Bien Commercial À Louer 145M2 avec 8 parkings privatifs


Réf. 13285
OLLIOULES - 83190

L'Agence Immobilière Orpi Cabanis vous présente à la location ce local de plain-pied de 145m² à Ollioules, avec de grandes vitrines, donnant sur un axe très passant. Le local bénéficie de 8 places de parking privatives (5 en aérien et 3 en sous-sol avec ascenseur). Loyer HT donc soumis à TVA 20%. Estelle BASSO, notre agent de location est à votre disposition pour vous communiquer tout autre renseignement le concernant au 06.08.87.34.19 ou par mail à estelle.basso@orpi.com. Nous vous invitons à visiter notre nouveau site internet https://immobilier-ollioules-centre.agencecabanis.com/ et abonnez vous à notre page Facebook https://www.facebook.com/cabanisimmobiliertransaction?locale=fr_FR.

2 950 € /mois
Charges comprises

Les caractéristiques DEP / GES sont en cours de réalisation...

Surface terrain
145 m2
Date de libération
01/02/2024
Nombre de WC
1
Imprimer

Agence Ollioules (Gestion & Location)

212 Chemin Des Delphiniums - Espace Mermoz 83190 Ollioules
Service Transactions
Service Locations
Service Gestion